首页
关于我们
产品中心
工程案例
技术论坛
售后服务
联系我们
首页
关于我们
公司简介
产品中心
工程案例
工程案例
技术论坛
技术论坛
售后服务
售后服务
联系我们
联系我们
PRODUCTS
产品展示
产品中心
当前位置:
首页
> > 产品展示
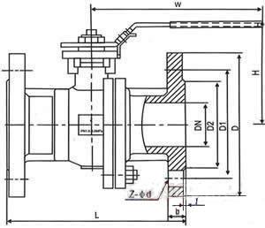
Q41F美标球阀
工作原理:
产品详情
产品参数
Q41F
美标法兰球阀
主要用于截断或接通介质,也可用于流体的调节与控制。美标球阀广泛用于石油、化工、冶金、电力、建筑、热力、给排水、水处理等行业。
美标球阀 执行标准
设计与制造按
ANSI B16.34,JIS 2071
结构长度按JIS B2002
法兰连接尺寸按JIS B2212,2214
检验按JIS B2003
返回
向你推荐
美标不锈钢铸造球阀维修
美标Y型过滤器维修 阀门维修
电动球阀维修 阀门维修 球阀维修
BQ41FHY保温球阀维修
高压锻钢球阀维修,硬密封球阀维修
Q347F国标固定法兰球阀 铸钢球阀维修