JD745X多功能水泵控制阀由主阀和调节阀及接管系统组成,阀体采用直流式阀体,主阀控制室为膜片式或活塞式的双控制室结构,控制室比一般水力控制阀增加了一个,增加了对主阀的控制功能,实现了对水泵出口的缓慢开启、全开、缓闭、截止等多功能控制,实现了一个阀门、一次调节对水泵出口的多功能控制。
本产品的接管系统采用调节阀控制,通过设定调节阀的开度,可方便实现需要的各项控制参数,如主阀的开启速度、缓闭速度等等。
工作原理
当水泵起动起后,水压作用于主阀阀盘下面和控制室下腔,此压力使主阀开启,控制室上腔的水经过调节阀B缓缓排到出口端,主阀缓缓开启。设定调节阀的开度可合适地主阀开启速度。当水泵停止工作后,进口端水压迅速下降,在自重、弹簧压力作用下快速关闭大部分开度,防止了水倒流余下的开度由控制室上腔的水压和下腔水压联合作用下缓缓关闭,关闭速度减慢形成了缓冲,防止压力剧增。
设定调节阀A、B的开度和开度比可合适的阀门启闭速度。
工作特点
1、防止水锤效果好,将缓开、止回速闭、缓闭等消除水锤的技术,防止开泵不锤和停泵倒流与水锤对供水管路和水泵的损害。
2、操作方便,无需为阀门另配电控系统,阀门随水泵的开启与停止自动并按顺序完成控制功能。通过设定调节阀开度可合适的控制参数。
3、阀体采用了全通道、直流式、流线型设计。水力损失小,节能效果好。
功能与用途
本阀门安装在水泵出口端,顺序实现缓慢开启、全开、速闭、缓闭等功能。
本产品用于高层建筑给水系统和其它给水系统的水泵出口管路上,防止和减弱水泵启闭时管线的水锤水击,防止水倒流保护水泵,维护管路。
主要技术参数
公称压力(Mpa) | 壳体试验压力(MPa) | 密封试验压力(MPa) | 调压范围(MPa) | 缓闭时间(S) | 低动作压力(MPa) | 适用介质 | 介质温度(℃) |
1.0 | 1.5 | 1.1 | 0.09-0.8 | 3-60 (可调) | ≥0.07 | 水 | 0-80 |
1.6 | 2.4 | 1.76 | 0.15-1.4 |
2.5 | 3.75 | 2.75 | 0.2-2.0 |
主要零件材料
零件名称 | 零件材料 |
阀体 阀盖 | WCB |
阀座 阀盘 | 铜合金/2Cr13 |
密封圈 O型圈 | 丁腈橡胶 |
阀杆 | 2Cr13 |
弹簧 | 50CrVA |
缸套 活塞(活塞型) | 2Cr13 |
膜片(膜片型) | 夹织物丁腈橡胶 |
调节阀 球阀 | 铜合金 |
过滤器 | 不锈钢 |

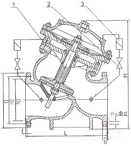
部件列表:
1、主阀2、流量调节阀3、过滤器
主要外形连接尺寸
DN | L | H | D mm | D1 mm | b mm | D2 mm | n-Φd |
mm | mm | PN1.0 | PN1.6 | PN2.5 | PN1.0 | PN1.6 | PN2.5 | PN1.0 | PN1.6 | PN2.5 | PN1.0 | PN1.6 | PN2.5 | PN1.0 | PN1.6 | PN2.5 |
40 | 240 | 270 | 150 | 150 | 150 | 110 | 110 | 110 | 18 | 18 | 18 | 88 | 88 | 84 | 4-17.5 | 4-17.5 | 4-18 |
50 | 240 | 270 | 165 | 165 | 165 | 125 | 125 | 125 | 20 | 20 | 20 | 102 | 102 | 99 | 4-17.5 | 4-17.5 | 4-18 |
65 | 270 | 340 | 185 | 185 | 185 | 145 | 145 | 145 | 20 | 20 | 22 | 122 | 122 | 118 | 4-17.5 | 4-17.5 | 8-18 |
80 | 300 | 400 | 200 | 200 | 200 | 160 | 160 | 160 | 22 | 22 | 24 | 133 | 133 | 132 | 8-17.5 | 8-17.5 | 8-18 |
100 | 350 | 440 | 220 | 220 | 235 | 180 | 180 | 190 | 24 | 24 | 24 | 158 | 158 | 156 | 8-17.5 | 8-17.5 | 8-22 |
125 | 400 | 460 | 250 | 250 | 270 | 210 | 210 | 220 | 26 | 26 | 26 | 184 | 184 | 184 | 8-17.5 | 8-17.5 | 8-26 |
150 | 480 | 500 | 285 | 285 | 300 | 240 | 240 | 250 | 26 | 26 | 28 | 212 | 212 | 211 | 8-22 | 8-22 | 8-26 |
200 | 500 | 640 | 340 | 340 | 360 | 295 | 295 | 310 | 28 | 30 | 30 | 268 | 268 | 274 | 8-22 | 12-22 | 12-26 |
250 | 605 | 690 | 395 | 405 | 425 | 350 | 355 | 370 | 28 | 32 | 32 | 320 | 320 | 330 | 12-22 | 12-26 | 12-30 |
300 | 700 | 820 | 445 | 460 | 485 | 400 | 410 | 430 | 28 | 32 | 34 | 370 | 370 | 389 | 12-22 | 12-26 | 16-30 |
350 | 800 | 950 | 505 | 520 | 555 | 460 | 470 | 490 | 30 | 36 | 38 | 430 | 430 | 448 | 16-22 | 16-26 | 16-33 |
400 | 900 | 1400 | 565 | 580 | 620 | 515 | 525 | 550 | 32 | 38 | 40 | 482 | 482 | 503 | 16-26 | 16-30 | 16-36 |
450 | 1000 | 1580 | 615 | 640 | 670 | 565 | 585 | 600 | 32 | 40 | 42 | 532 | 550 | 548 | 20-26 | 20-30 | 20-36 |
500 | 1100 | 1600 | 670 | 715 | 730 | 620 | 650 | 660 | 34 | 42 | 44 | 585 | 585 | 609 | 20-26 | 20-33 | 20-36 |
600 | 1300 | 1815 | 780 | 840 | 845 | 725 | 770 | 770 | 36 | 48 | 46 | 685 | 685 | 720 | 20-30 | 20-36 | 20-39 |
700 | 1400 | 2040 | 895 | 910 | 960 | 840 | 840 | 845 | 40 | 54 | 50 | 800 | 800 | 820 | 24-30 | 24-36 | 24-42 |
800 | 1500 | 2350 | 1015 | 1025 | 1085 | 950 | 950 | 990 | 44 | 58 | 54 | 905 | 905 | 925 | 24-33 | 24-39 | 24-48 |
900 | 1700 | 2606 | 1115 | 1125 | 1185 | 1050 | 1050 | 1090 | 46 | 62 | 58 | 1005 | 1005 | 1028 | 28-33 | 28-39 | 28-48 |
1000 | 1900 | 2765 | 1230 | 1255 | 1320 | 1160 | 1170 | 1210 | 50 | 66 | 62 | 1110 | 1110 | 1140 | 28-36 | 28-42 | 28-56 |
1200 | 2050 | 2950 | 1455 | 1485 | 1530 | 1380 | 1390 | 1420 | 56 | 52 | 70 | 1330 | 1328 | 1350 | 32-39 | 32-48 | 32-55 |
1400 | 2200 | 3180 | 1675 | 1685 | 1755 | 1590 | 1590 | 1640 | 62 | 58 | 76 | 1530 | 1530 | 1560 | 36-42 | 36-48 | 36-60 |
1600 | 2400 | 3400 | 1915 | 1930 | 1955 | 1820 | 1820 | 1860 | 68 | 64 | 84 | 1750 | 1750 | 1780 | 40-48 | 40-55 | 40-60 |
安装示意图
