角式放料阀阀体为90度角,进出口法兰大小相同。阀体内腔装有耐冲刷、耐腐蚀的密封圈,在开启阀门瞬间,可以保护阀体不被介质冲刷、腐蚀,并对密封圈子进行特种处理,使表面硬度达到HRC25~40。阀座密封面与阀瓣密封面均堆焊有司太立硬质合金,密封副采用线密封,保证密封,保证密封的可靠性,并可防止结疤。阀瓣斜面于阀座角形成线密封,阀瓣阀瓣启闭时有手轮带动铜螺母,螺母带阀杆(上下运动有夹板定向,阀杆不会出现旋转)向反应釜内伸。底部法兰可拆卸,焊接到反应釜底部(注意:阀门需要是关必状态拆卸法兰)。
本阀严禁使用含氟离子液体(如HF等)也不能用强碱及磷酸(温度>150oC,浓度>30%)。
性能参数
型号 | 工作压力/MPa | 工作温度/℃ | 适用介质 |
FLJ45H-16 | 1.6 | ≤180 | 水、腐蚀性介质等 |
主要零件材料
阀体、支架:WCB、不锈钢
阀杆、阀瓣、阀座:2Cr13、304

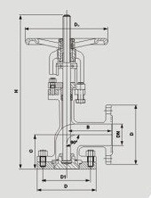
主要外形尺寸(法兰尺寸按JB79PN1.6MPa)
DN (mm) | 角式放料阀 |
D | D1 | H | D0 | B | C |
50 | 160 | 125 | 370 | 180 | 124 | 77 |
80 | 195 | 160 | 480 | 250 | 158 | 103 |
100 | 215 | 180 | 590 | 280 | 168 | 123 |
150 | 280 | 240 | 775 | 320 | 209 | 156 |